Vés al contingut
estudi
contacte
estudi
contacte
Instagram
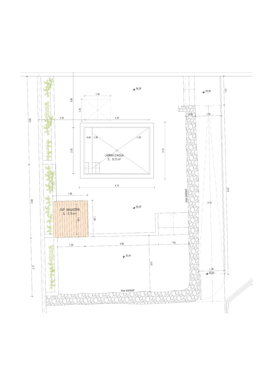
013_24 Piscina Calafell
Projecte:
013_24 Piscina Calafell
Inici obra:
2024
Finalització obra:
2024